Außenwand mit Wärmedämm-Verbundsystem
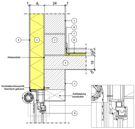
Fenstersturz
Fenstersturz mit Rollladenkasten, Fenster in Dämmebene, normale Bewitterung
| 3 | Dicke der Dämmschicht der Außenwand | d | m |
| 3 | Wärmeleitfähigkeit der Dämmschicht der Außenwand | λ | W/(mK) |
| 9 | Rahmenmaterial: 1 = Holz / 2 = Kunststoff / 3 = Alu | Mat |
Thermische Werte des Konstruktionsanschlusses
(Zwischenwerte können linear interpoliert werden)
| Wärmedurchgangskoeffizient Regelbauteil "Außenwand" | U | $wert-aus-thermal-xml-u1 W/(m²K) |
| Längenbezogener Wärmedurchgangskoeffizient | ψ | $wert-aus-thermal-xml-y W/(mK) |
| Minimale Oberflächentemperatur im beheizten Raum | θmin | $wert-aus-thermal-xml-q °C |


