Außenwand mit Wärmedämm-Verbundsystem
Sockelanschluss
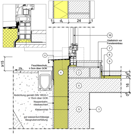
Sockelanschluss, unterkellertes Gebäude, beheizter Keller, Putzsockel mit Gitterrostrinne, mit Fenster/Tür in Wandebene, erhöhte Bewitterung
| 4 | Dicke der Dämmschicht der Kelleraußenwand | d | m |
| 10 | Rahmenmaterial: 1 = Holz / 2 = Kunststoff / 3 = Alu | Mat |
Thermische Werte des Konstruktionsanschlusses
(Zwischenwerte können linear interpoliert werden)
| Wärmedurchgangskoeffizient Regelbauteil "Kelleraußenwand" | U | $wert-aus-thermal-xml-u2 W/(m²K) |
| Längenbezogener Wärmedurchgangskoeffizient | ψ | $wert-aus-thermal-xml-y W/(mK) |
| Minimale Oberflächentemperatur im beheizten Raum | θmin | $wert-aus-thermal-xml-q °C |


